Котлы Валдай 15-50 кВт
![]() |
![]() |
![]() |
Котлы "Валдай" производства ООО "Общемаш" имеют декларацию ЕАС
ИНСТРУКЦИЯ ПО ЭКСПЛУАТАЦИИ
Котлы "Валдай" предназначены для теплоснабжения (отопления) индивидуальных жилых домов, зданий коммунально-бытового назначения, оборудованных системой водяного отопления.
Котлы "Валдай" имеют уникальный водотрубный теплообменник, проектируемый изначально для использования пеллет и отвечающий следующим требованиям:
- легкость очистки;
- минимальные отложения золы на поверхностях теплообменника;
- высокий КПД – при работе на дровах 76%, при работе на пеллетах 90%;
- удобство эксплуатации.
Пеллетный котёл оснащён горелкой типа ВС, имеющей систему механической автоочистки и внутренний шнек. А так же возможности дистанционного контроля и управления, посредством GSM и WI-FI модулей в её блоке управления.
Так же блок управления горелкой обеспечивает автоматическое управление процессом:
- поддержание температуры воды на входе в котел (to – температура "обратки");
- поддержание температуры воздуха в помещении с сигналом от внешнего датчика-реле температуры;
- работа по недельному графику; задается основная температура воды на входе в котел (to) и экономичная температура (tэ); возможно задать до 4 перехо-дов между этими температурами на каждый день недели;
- работа с переходом на электрокотел; в режиме работы на пеллетах, под-держивается заданная температура за счет горения пеллет, а в режиме работы на электрокотле заданная температура поддерживается периодическим включением установленного в системе электронагревателя;
- работа котла в режиме старт-стоп;
- работа котла на дровах;
- управление циркуляционным насосом системы отопления;
- защита котла от перегрева по датчику температуры на выходе из котла.
Отличие котлов "Пересвет и "Валдай"
Котел "Пересвет" имеет два основных топлива: пеллеты и дрова (время горения дров не менее 6 часов).
Котел "Валдай" изначально проектировался под одно основное топливо - пеллеты, а дрова являются аварийным видом топлива (время горения не менее 2 часов).
В котел "Пересвет" помещается в 3 раза больше дров, чем в котел "Валдай".
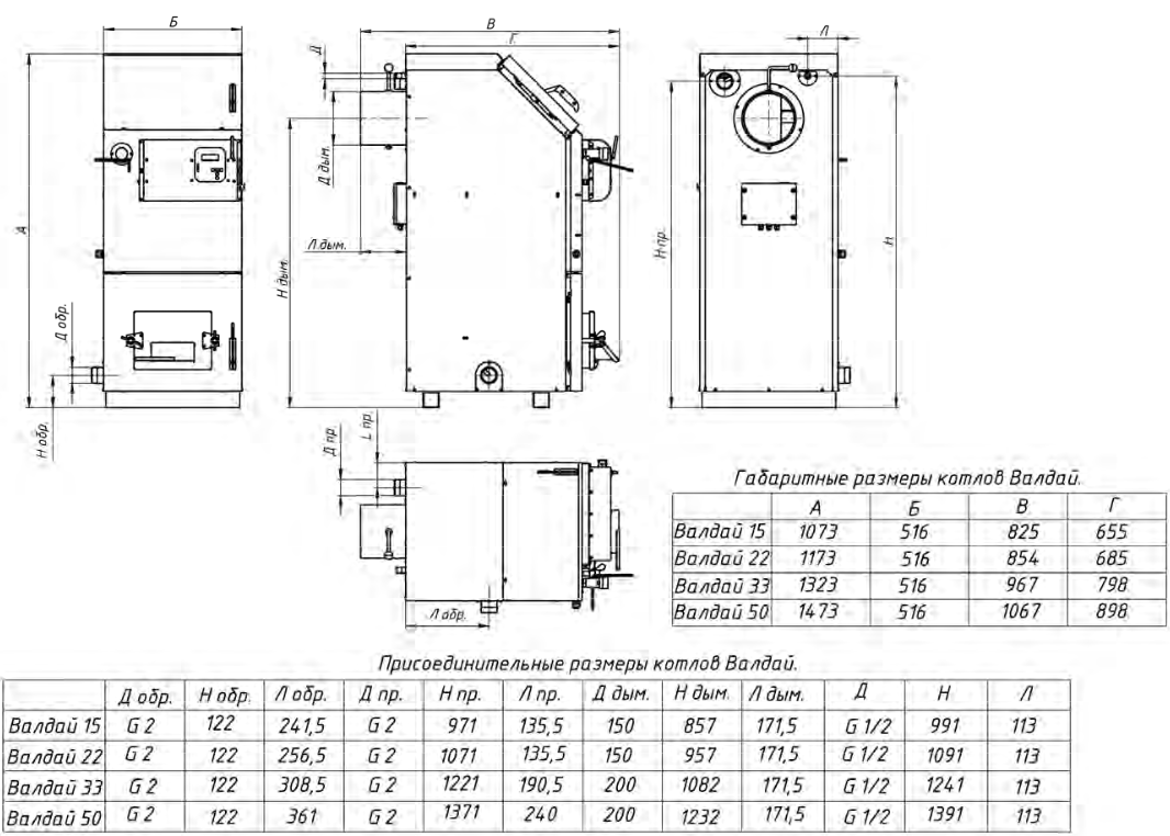
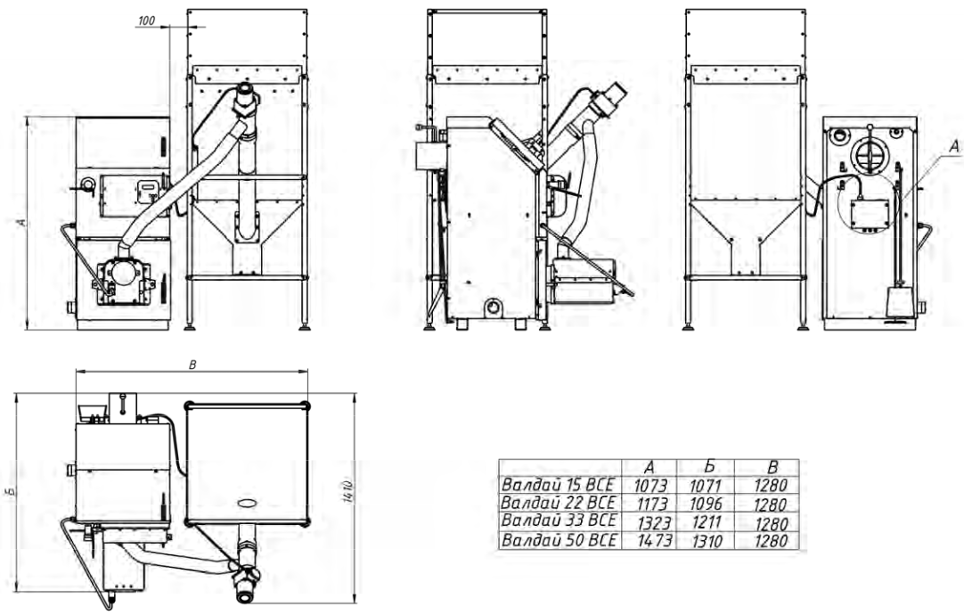
Габаритные размеры котлов Валдай с горелкой ВС


ТЕХНИЧЕСКИЕ ХАРАКТЕРИСТИКИ КОТЛОВ "Валдай ВС"
|
Наименование параметра |
Валдай-15ВС |
Валдай-22ВС |
Валдай-33ВС |
Валдай-50ВС |
||||
|
Вид используемого топлива: |
|
|||||||
|
Пеллетная горелка |
ВС4/35Е |
ВС10/50Е |
||||||
|
Тепловая мощность горелки (регулируемая) кВт |
4…35 |
10..50 |
||||||
|
Напряжение питания, В |
220 |
|||||||
|
Потребляемая электрическая мощность (не более), Вт |
на режиме розжига – не более 600, |
|||||||
|
Габариты горелки ВхШхД, мм |
481х365х538
|
481х365х590
|
||||||
|
Вес горелки, кг |
25 |
|||||||
|
Габариты бункера с податчиком пеллет ШхДхВ, мм |
660х1094х1407 |
660х1094х1766 |
||||||
|
Вес бункера с податчиков пеллет, кг |
52 |
75 |
||||||
|
Емкость бункера, л |
270 |
420 |
||||||
|
Номинальная тепловая мощность котла, кВт |
15 |
22 |
33 |
50 |
||||
|
Диапазон регулирования мощности, кВ |
4-15 |
4-22 |
4-33 |
10-50 |
||||
|
КПД, %, не менее: |
|
76 |
76 |
|||||
|
Тип теплоносителя |
Вода |
|||||||
|
Максимальное гидравлическое сопротивление в котле, |
1,3(130) |
2,1(210) |
2,6(260) |
|||||
|
Объем воды в теплообменнике аппарата, л |
51 |
54 |
60 |
80 |
||||
|
Максимальное допустимое рабочее давление, бар |
1,5 |
1,5 |
1,5 |
|||||
|
Требуемое разрежение за котлом, мбар (Па): |
|
|
|
|
||||
|
Размер патрубков подключения теплоносителя, «резьба» |
G2 ̎ |
G2 ̎ |
G2 ̎ |
|||||
|
Способ очистки колосника горелки |
механический |
|||||||
|
Требуемый диаметр дымохода, мм |
150 |
150 |
200 |
|||||
|
Масса котла, не более, кг |
210 |
230 |
295 |
380 |
||||
|
Максимальная длина сжигаемых поленьев, мм |
350 |
350 |
350 |
350 |
||||
|
Назначенный срок службы |
Не менее 15 лет |
|||||||
КОМПЛЕКТ ПОСТАВКИ
|
котел |
1 шт., |
|
горелка пеллетная |
1 шт., |
|
- совок, скребок металлический, регулятор тяги |
1 комплект, |
|
- пластина для сжигания дров |
1 шт, |
|
- ящик для золы (на днище котла) |
1 шт., |
|
- руководство по эксплуатации и технический паспорт на котел |
1 шт. |


